Junon
  • Institution
  • In Progress
  • Geneva (2022)

The IOM (International Organization for Migration) has decided to build their new Hearquarters in Geneva (Switzerland). This new building will allow for 600 workstations and social spaces, and a conference center for 300 delegates and ob-servers on the constrained site of the current IOM building in the area of the “Jardin des Nations”, where all

The IOM (International Organization for Migration) has decided to build their new Hearquarters in Geneva (Switzerland).

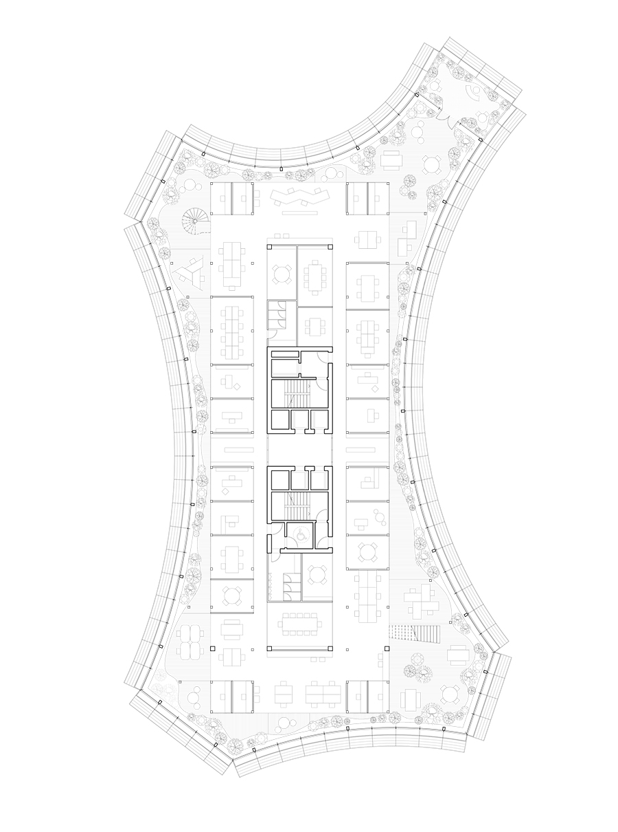
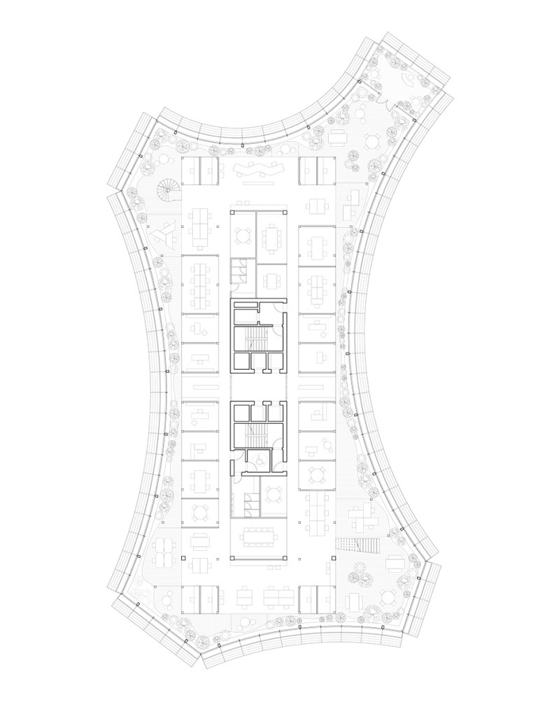
This new building will allow for 600 workstations and social spaces, and a conference center for 300 delegates and ob-servers on the constrained site of the current IOM building in the area of the “Jardin des Nations”, where all International Organizations are standing.

In the frame of the competition, 14 offices from the 5 continents have been selected to participate to this very prestigious competition. G8A Architects, representing Asia, and especially Vietnam, have been awarded to develop the project from its base in Hanoi.

The proposal has explored the delicate balance between an emblematic building, expressing a remarkable institution as IOM, with curvy movements edging through the trees, and in the same time, a clarity of layout, providing efficiency and flexibility.

An answer is proposed to the new needs of working spaces of today with an extremely adaptability over time. The high degree of flexibility anticipates the new life styles and offer a novel kind of worskspace, from work in peace and quiet or for joint work, favouring dialogue and exchanges through a spinning double height, enveloping the offices floors.

The technical solutions are also a model of exemplarity in term of sustainability, finding energetic ressources through a self-production from the building. The double façade protection will protect the indoor spaces but also allows views and natural lighting all along the year.

From the competition jury and IOM representative own words: “The project that won the competition offers a solution that not only enhances the landscape and is fit for purpose, but represents the diversity of IOM’s membership, staff, and the migrants we serve. IOM looks forward to developing this project, which will provide the Organization with an efficient and adaptable workplace with clear and integrated access, which will embody IOM’s position as the leading intergovern-mental organization in the field of migration.”

  • ClientInternational Organization for Migration (IOM)
  • ProgramInstitution
  • StatusIn Progress
  • PhotoELEMENT VISUALIZATION
  • PartnersLOCALARCHITECTURE, Transsolar KlimaEngineering, Schnetzer Puskas Ingenieure, Husler et Associés architectes paysagistes
  • LocationRoute des Morillions 17, Le Grand-Saconnex, Geneva, Switzerland
Full Text